Optimiser l’espacer pour concrétiser un premier projet de vie.
Situé sur la commune de Saturargues, ce projet de construction neuve a été pensé pour de jeunes primo-accédants. L’enjeu principal était d’optimiser une parcelle compacte de 324 m² pour y implanter une maison familiale fonctionnelle d’environ 90 m², tout en respectant une enveloppe budgétaire précise et les règles strictes du Plan Local d’Urbanisme.
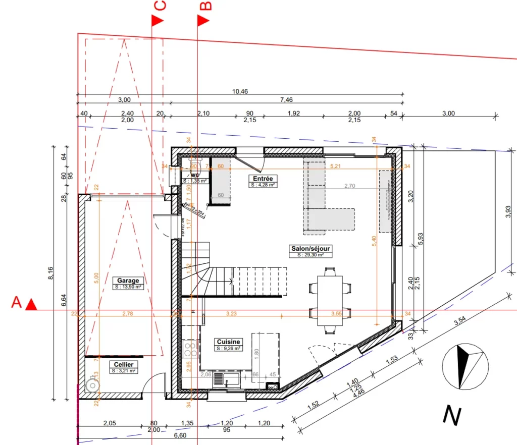
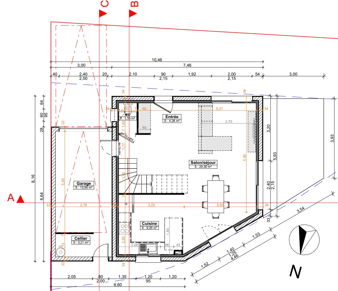
Pour préserver un maximum d’espace libre et végétalisé (plus de 65% de la parcelle), nous avons privilégié une conception à étage (R+1) limitant l’emprise au sol à 91 m² (garage et terrasses inclus). Le rez-de-chaussée offre une belle pièce de vie lumineuse de près de 30 m² avec cuisine ouverte, complétée par un cellier communiquant avec le garage. L’étage est quant à lui dédié à l’espace nuit, desservant trois chambres optimisées et une salle d’eau.
Au-delà des plans intérieurs élaborés à partir des esquisses de nos clients, notre mission de Permis de Construire a englobé la conception complète et technique des aménagements extérieurs. Nous avons notamment traité la gestion complexe des limites de propriété, l’intégration des stationnements requis, et le dimensionnement d’un bassin de rétention des eaux pluviales indispensable à la validation du projet par la mairie.
DÉTAILS DE L’AMÉNAGEMENT
Optimisation des espaces
Création de 85,70 m² habitables parfaitement distribués : espace jour décloisonné en bas, 3 chambres en haut, réduisant les espaces perdus.
Gestion des eaux pluviales
Calcul et intégration sur les plans d’un bassin de rétention de 9,24 m³ (7,70m x 2m) pour compenser les surfaces imperméabilisées selon le PLU.
Aménagement et stationnement
Modélisation soignée des clôtures (mur enduit et portillon ALU) et intégration de deux places de stationnement de 5×2,5m réglementaires.
GALERIE DU PROJET
Faire construire sa première maison est une grande étape. Un dossier de Permis de Construire rigoureux est la clé pour démarrer vos travaux sereinement.
Les terrains à bâtir étant de plus en plus compacts, une conception sur-mesure est souvent nécessaire pour exploiter chaque mètre carré (optimisation du plan intérieur, choix du R+1) tout en respectant les normes locales d’urbanisme (stationnements, clôtures, rétention des eaux).
Soluplan accompagne les primo-accédants et les familles dans leur projet de construction de maison individuelle à Saturargues, Lunel, Baillargues et dans tout l’est de l’Hérault.
De la mise au propre de vos esquisses à la gestion des contraintes techniques du PLU, nous constituons un dossier solide et transparent pour faciliter son instruction par la mairie.





